




1 / 31



Vivienda en C. Mediterrani, Arenys de Mar
CASA•Venta|ARENYS DE MAR, Barcelona
316.000 €
6Hab.
6Baños
452 m²m² Total
452 m²m² Const.
REF: 5450
Descripción
Vivienda unifamiliar aislada en estado de construcción paralizada en Arenys de Mar, Barcelona.
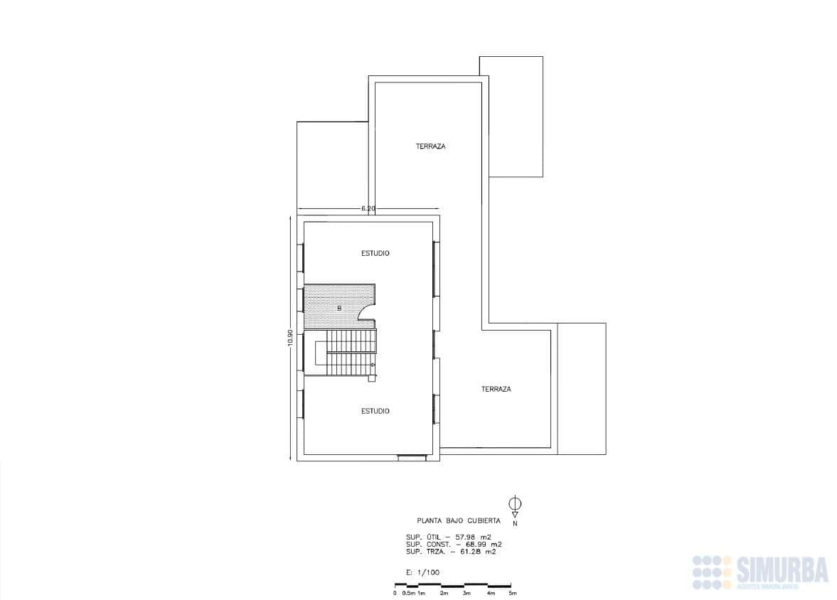
Casa distribuida en cuatro plantas, una de ellas sótano destinada a garaje, y tres plantas sobre rasante con uso residencial. La planta baja se distribuye en salón-comedor, sala de estar, una habitación, cocina independiente, dos baños, terraza y porche. La primera planta alberga cuatro habitaciones, tres baños (uno en suite) y terraza; la planta superior cuenta con una estancia tipo estudio, un baño y una amplia terraza con vistas. Todas las plantas están conectadas mediante escalera interior. Ubica...
Casa distribuida en cuatro plantas, una de ellas sótano destinada a garaje, y tres plantas sobre rasante con uso residencial. La planta baja se distribuye en salón-comedor, sala de estar, una habitación, cocina independiente, dos baños, terraza y porche. La primera planta alberga cuatro habitaciones, tres baños (uno en suite) y terraza; la planta superior cuenta con una estancia tipo estudio, un baño y una amplia terraza con vistas. Todas las plantas están conectadas mediante escalera interior. Ubica...
Datos del inmueble
Distribución
- Superficie: 452 m²
- Construidos: 452 m²
- 6 Habitaciones
- 6 Baños
Eficiencia
Estado de conservaciónA reformar
Ubicación| ARENYS DE MAR - 08350 - Avinguda del Mediterrani
Zona Calle
