




1 / 3


VENTA DE SOLAR URBANO EN PUEBLA DE LA CALZADA.
SOLAR•Venta|PUEBLA DE LA CALZADA, SANTO TORIBIO, Badajoz
65.000 €
337 m²m² Total
REF: T-520
Descripción
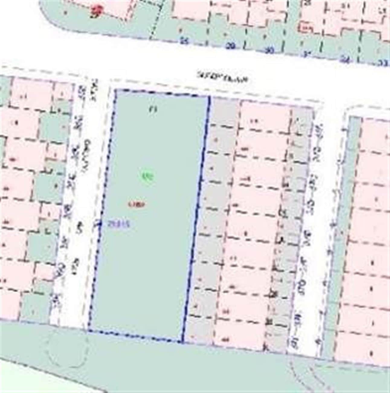
T-520: VENTA DE SOLAR URBANO EN ZONA SANTO TORIBIO DE PUEBLA DE LA CALZADA.
Solar en una de las mejores zonas de Puebla de la Calzada.
Medidas aprox. 13,30 ml. de fachada x 25 ml. de fondo
INFORMESE SIN COMPROMISO ¡¡
Solar en una de las mejores zonas de Puebla de la Calzada.
Medidas aprox. 13,30 ml. de fachada x 25 ml. de fondo
INFORMESE SIN COMPROMISO ¡¡
Datos del inmueble
Distribución
- Superficie: 337 m²
Equipamiento
- Vistas: Calle
