




1 / 11



TERRENO CON PROYECTO EN SA MARINETA
TERRENO•Venta|MANACOR, PORTO CRISTO, Baleares
390.000 €
14.500 m²m² Total
REF: T-38
Descripción
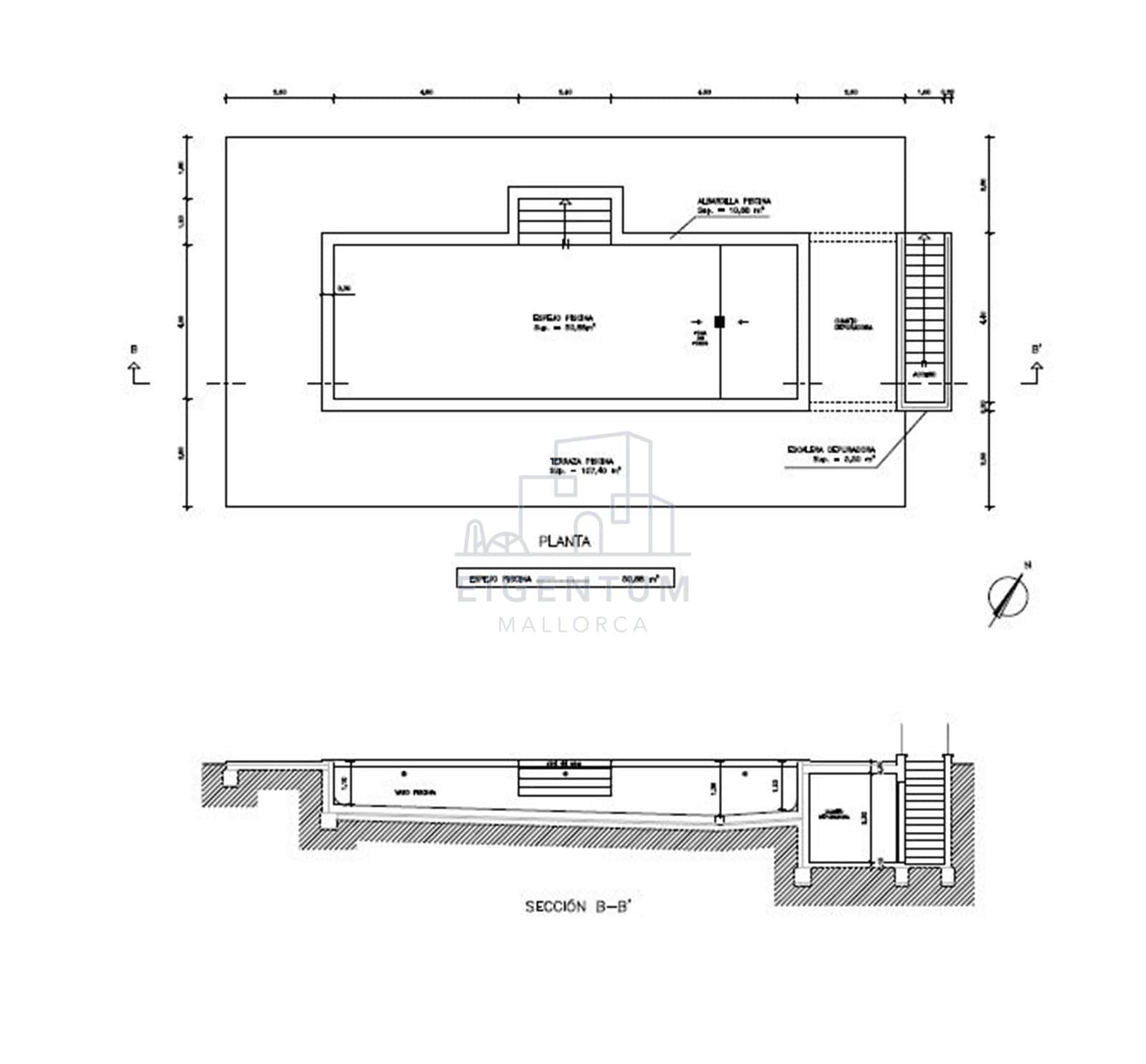
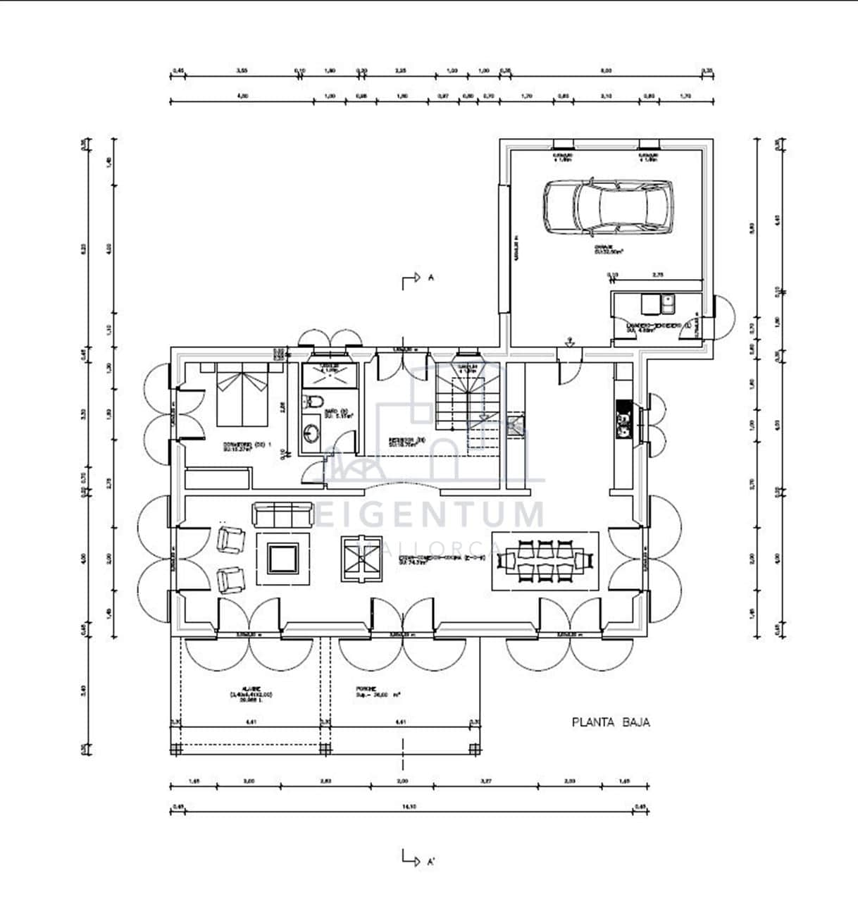
Terreno de dos cuarteradas con proyecto entrado en el ayuntamiento de Manacor listo para iniciar las obras de construcción de vivienda unifamiliar más piscina.
Agua de la comunidad de regantes
Transformador de energía a 500m
Muy cerca de Porto Cristo
Vallado con acceso
Agua de la comunidad de regantes
Transformador de energía a 500m
Muy cerca de Porto Cristo
Vallado con acceso
Datos del inmueble
Distribución
- Superficie: 14.500 m²
