




1 / 14



NAVE INDUSTRIAL EN ALQUILER EN EL POLÍGONO DE INCA
Nave•Alquiler|INCA, POLÍGONO INCA, Baleares
18.000 €/ Mes
2Baños
1.339 m²m² Total
REF: N-14
Descripción
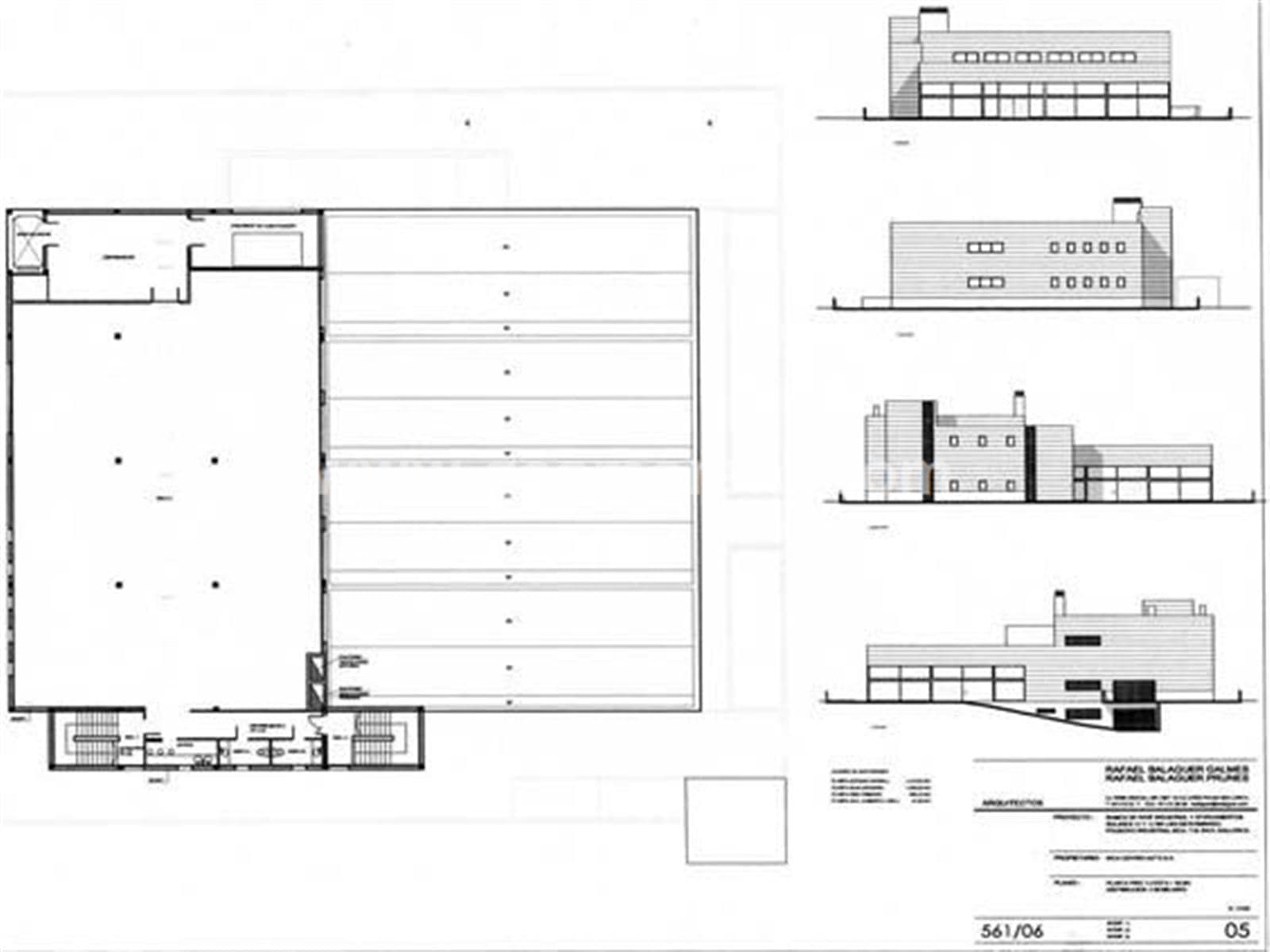
UBICACIÓN: Nave industrial situada en el Polígono de Inca (Ca Na llobera). Muy bien comunicada con las líneas de transporte público y con la autovía Ma-13 hacia Palma.
DESCRIPCIÓN: Nave Industrial en alquiler en el polígono de Inca (Ca Na Llobera). La nave está compuesta por planta calle de 1.339'23 m2 con una altura de 3,26m aprox, una 1ª planta de 659'22 m2 y planta sótano de 1.318'93 m2 con una altura de 3,25m aprox. Cuenta con puerta de sótano de 5,38x2,86m aprox. Dispone de 54 aparcamientos. *Para más información contacte con nuestros asesores. N-14
DESCRIPCIÓN: Nave Industrial en alquiler en el polígono de Inca (Ca Na Llobera). La nave está compuesta por planta calle de 1.339'23 m2 con una altura de 3,26m aprox, una 1ª planta de 659'22 m2 y planta sótano de 1.318'93 m2 con una altura de 3,25m aprox. Cuenta con puerta de sótano de 5,38x2,86m aprox. Dispone de 54 aparcamientos. *Para más información contacte con nuestros asesores. N-14
Datos del inmueble
Distribución
- Superficie: 1.339 m²
- 2 Baños
Eficiencia
Estado de conservaciónPerfecto estado
