




1 / 10



NAVE EN VENTA EN HOSPITALET DE LLOBREGAT
Nave•Venta|HOSPITALET DE LLOBREGAT, Barcelona
460.000 €
834 m²m² Total
REF: N-622
Descripción
UBICACIÓN: Nave situada en Bellvitge, Hospitalet de Llobregat, en Barcelona. Rodeada de comercios. Muy bien comunicada con las vías de transporte público y con la autovía C-31.
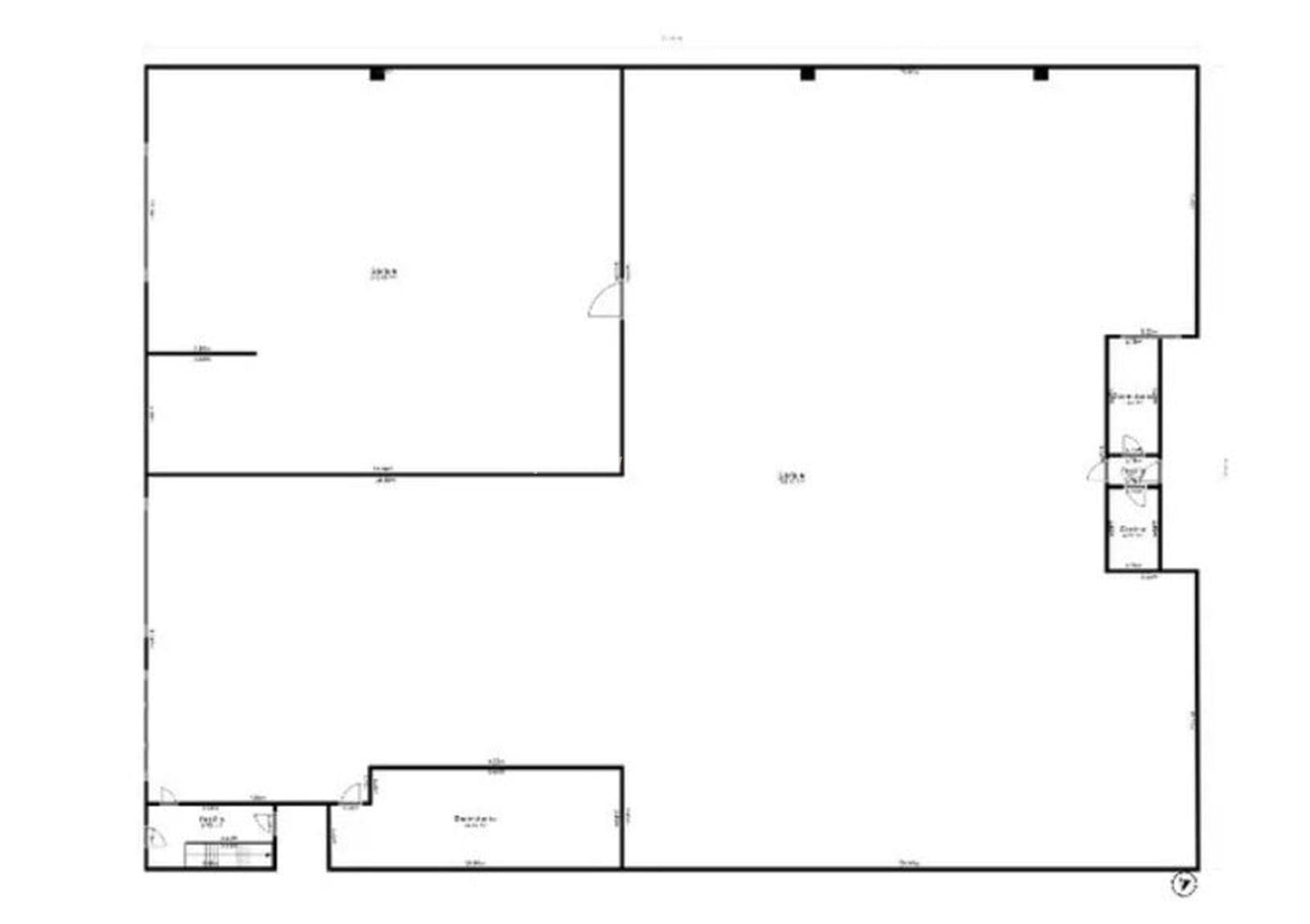
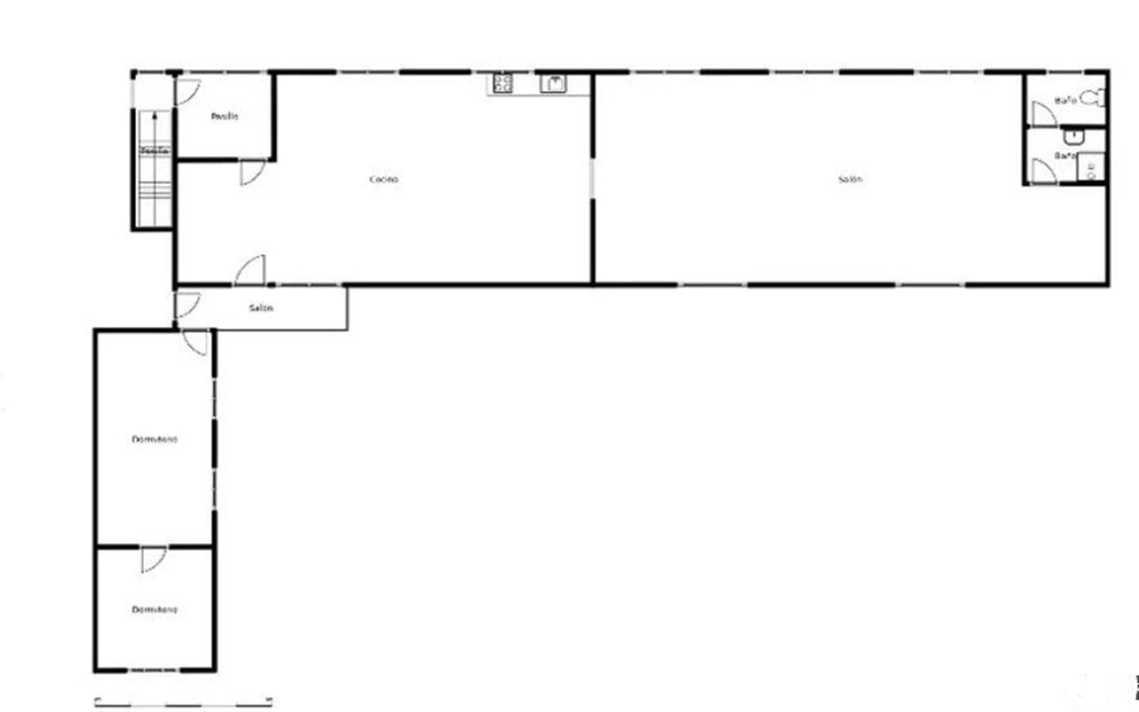
DESCRIPCIÓN: Nave industrial de 834m2 aprox con un ancho de 23,83m aprox y un fondo de 33m aprox. Se divide en planta baja con zona de trabajo y un altillo de 62m2 aprox con varias estancias y aseos. Cuenta con dos puertas de acceso, para vehículos y peatones. *Inmueble en estado de OCUPACIÓN y procedente de cartera bancaria, sujeto a cambios. Para más información contacte con nuestros asesores. N-622
DESCRIPCIÓN: Nave industrial de 834m2 aprox con un ancho de 23,83m aprox y un fondo de 33m aprox. Se divide en planta baja con zona de trabajo y un altillo de 62m2 aprox con varias estancias y aseos. Cuenta con dos puertas de acceso, para vehículos y peatones. *Inmueble en estado de OCUPACIÓN y procedente de cartera bancaria, sujeto a cambios. Para más información contacte con nuestros asesores. N-622
Datos del inmueble
Distribución
- Superficie: 834 m²
- 2 Aseos
Eficiencia
Estado de conservaciónCorrecto
