




1 / 3


NAVE EN CONSTRUCCIÓN EN ALQUILER EN EL POLIGONO DE MANACOR
Nave•Consultar|MANACOR, Baleares
Consultar
293 m²m² Total
REF: N-812
Descripción
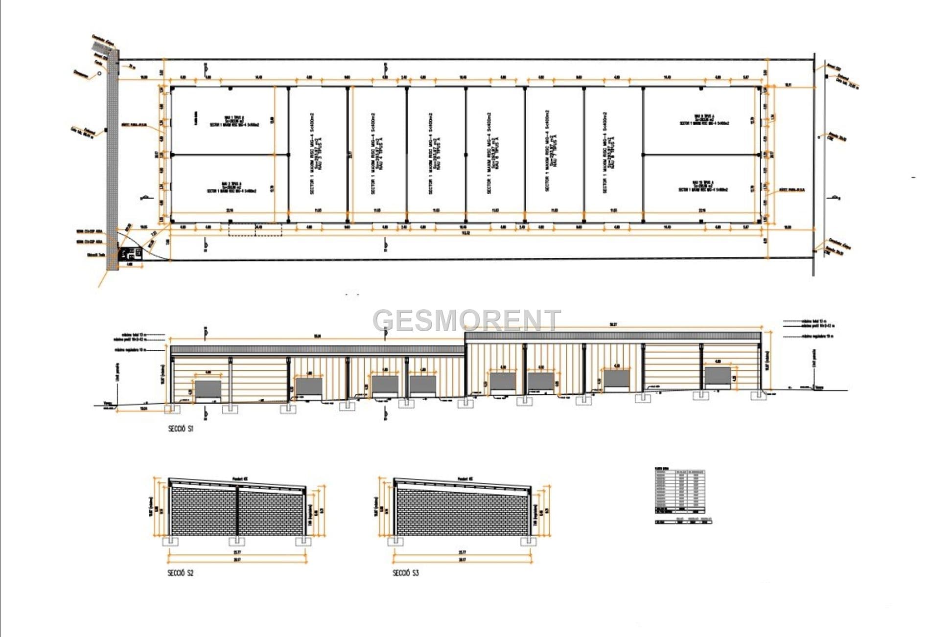
UBICACIÓN: Nave en construcción en alquiler situada en el Polígono industrial de Manacor. Muy bien comunicada con las líneas de transporte público y con la autovía Ma-15, que conecta con Palma.
DESCRIPCIÓN: Nave en construcción en alquiler de tipo A con 293,96m2 aprox en planta calle con una altura de 10,87m aprox. Tiene un ancho de 12,69m y un fondo de 22,16m aprox. La nave cuenta con estructura de hormigón, cubierta de panel sándwich y suelo de hormigón pulido. El acceso a la nave es mediante puerta metálica enrollable de 4,80x4,20m y se accede por vial de 5m aprox. Dispone de agua e instal...
DESCRIPCIÓN: Nave en construcción en alquiler de tipo A con 293,96m2 aprox en planta calle con una altura de 10,87m aprox. Tiene un ancho de 12,69m y un fondo de 22,16m aprox. La nave cuenta con estructura de hormigón, cubierta de panel sándwich y suelo de hormigón pulido. El acceso a la nave es mediante puerta metálica enrollable de 4,80x4,20m y se accede por vial de 5m aprox. Dispone de agua e instal...
Datos del inmueble
Distribución
- Superficie: 293 m²
Equipamiento
- Exterior
Eficiencia
Estado de conservaciónCorrecto
