




1 / 21



NAVE EN ALQUILER EN EL POLIGONO DE SON CASTELLÓ
Nave•Alquiler|PALMA DE MALLORCA, POLÍGONO SON CASTELLO, Baleares
15.000 €/ Mes
750 m²m² Total
REF: N-855
Descripción
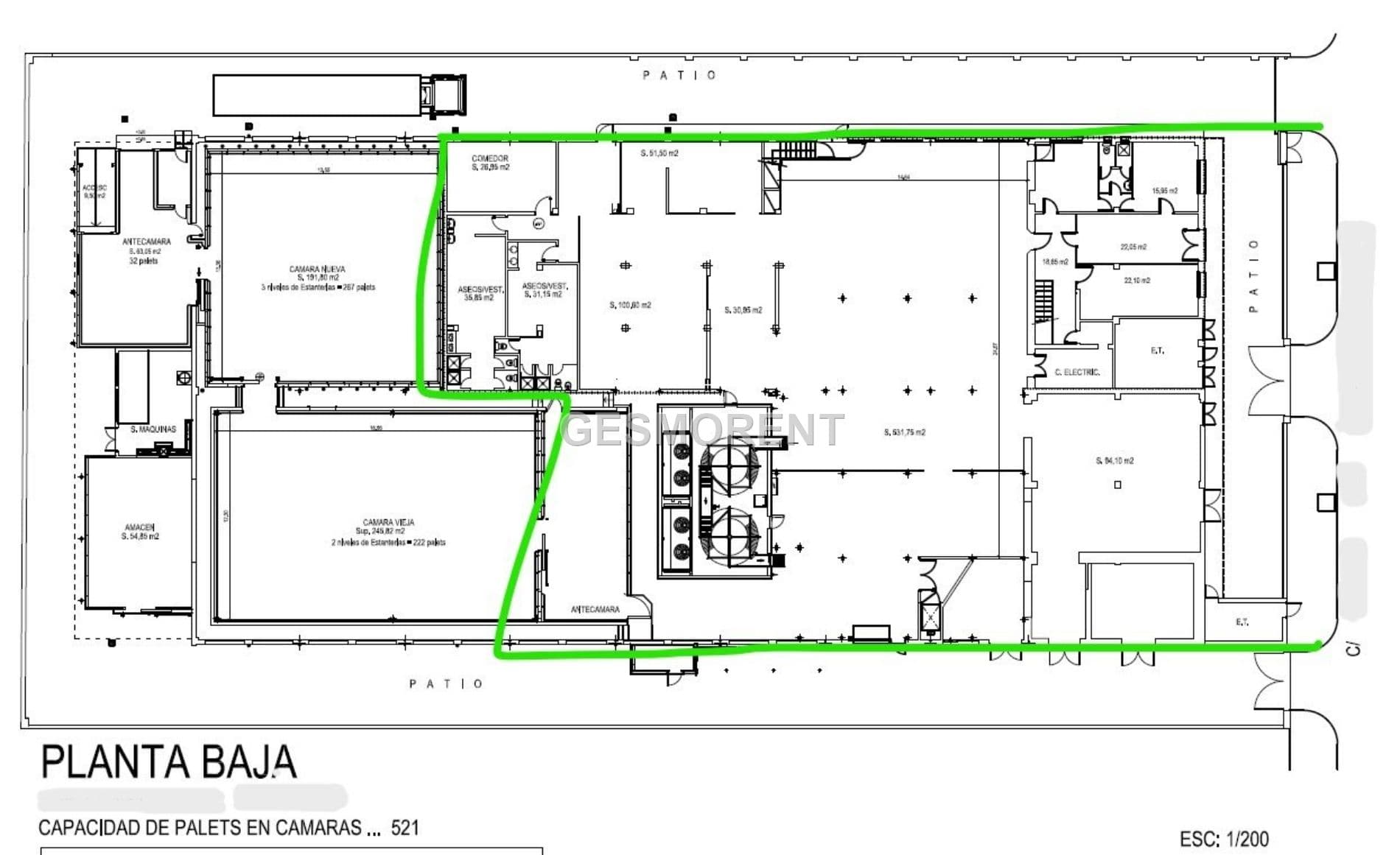
UBICACIÓN: Nave situada en el Polígono Industrial de Son Castelló, una de las áreas empresariales más consolidadas de Palma. La zona cuenta con una amplia implantación de empresas industriales, logísticas y de servicios, lo que la convierte en un entorno estratégico para el desarrollo de cualquier actividad. Dispone de excelentes accesos viarios, con conexión directa a las principales líneas de transporte público y las utovías Ma-20 y Ma-13.
DESCRIPCIÓN: Nave industrial con una superficie total distribuida en planta baja de 750 m² y 1ª planta de 900 m², ambos niveles comunicados mediante mont...
DESCRIPCIÓN: Nave industrial con una superficie total distribuida en planta baja de 750 m² y 1ª planta de 900 m², ambos niveles comunicados mediante mont...
Datos del inmueble
Distribución
- Superficie: 750 m²
Eficiencia
Estado de conservaciónCorrecto
