




1 / 4



LOCAL EN VENTA EN POLÍGONO DE MANACOR
Local•Venta|MANACOR, POLÍGONO MANACOR, Baleares
1.785.000 €
582 m²m² Total
REF: L-555
Descripción
UBICACIÓN: Ubicado en la primera línea de carretera Palma- Manacor Ma-15, al lado de la autovía, muy bien comunicado, en la zona más comercial de Manacor.
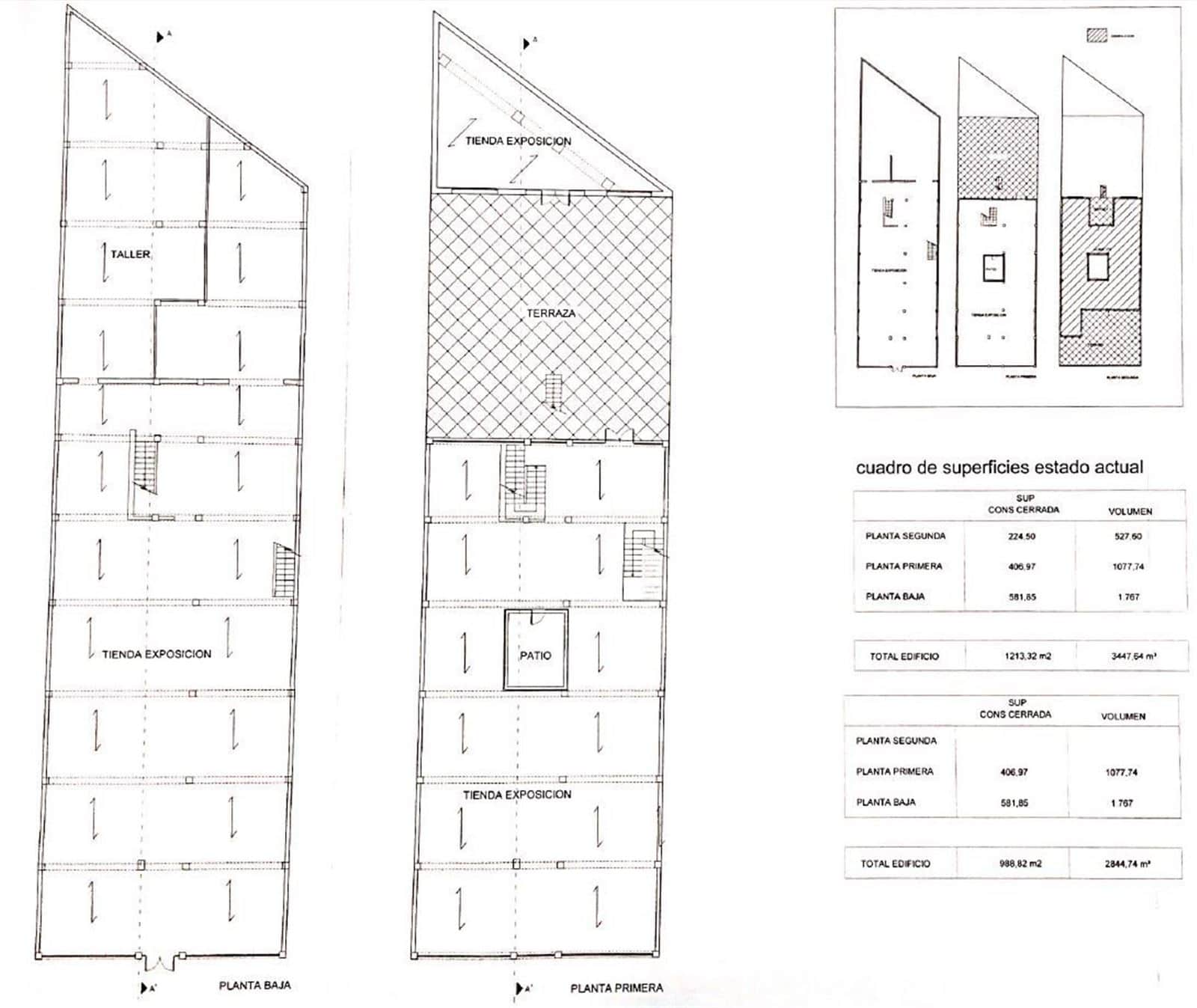
DESCRIPCIÓN: Local comercial en venta con Inquilino de 998m2 aprox. dividido en planta baja de 581m2 aprox., primera planta de 406m2 aprox. y segunda planta de 224m2 aprox. En primera línea de zona comercial y de grandes superficies como Lidl, Müller, Hipercentro etc.
Cuenta con una gran fachada acristalada con mucha visibilidad. Fácil aparcamiento delantero. Ideal para Inversionista. Para más información póngase en contacto con nuestro...
DESCRIPCIÓN: Local comercial en venta con Inquilino de 998m2 aprox. dividido en planta baja de 581m2 aprox., primera planta de 406m2 aprox. y segunda planta de 224m2 aprox. En primera línea de zona comercial y de grandes superficies como Lidl, Müller, Hipercentro etc.
Cuenta con una gran fachada acristalada con mucha visibilidad. Fácil aparcamiento delantero. Ideal para Inversionista. Para más información póngase en contacto con nuestro...
Datos del inmueble
Distribución
- Superficie: 582 m²
Eficiencia
CertificadoD
Estado de conservaciónCorrecto
