




1 / 11



LOCAL EN ALQUILER EN PLAZA DE LOS PATINES
Local•Alquiler|PALMA DE MALLORCA, CENTRO, Baleares
25.000 €/ Mes
1Baños
451 m²m² Total
REF: L-1157
Descripción
UBICACIÓN: Local situado en Plaza de los Patines, junto a Olmos, Plaza España y avenidas de Palma. Zona muy transitada rodada y peatonalmente. Rodeada de comercios de todo tipo, servicios y viviendas. Muy bien comunicado con las líneas de transporte público.
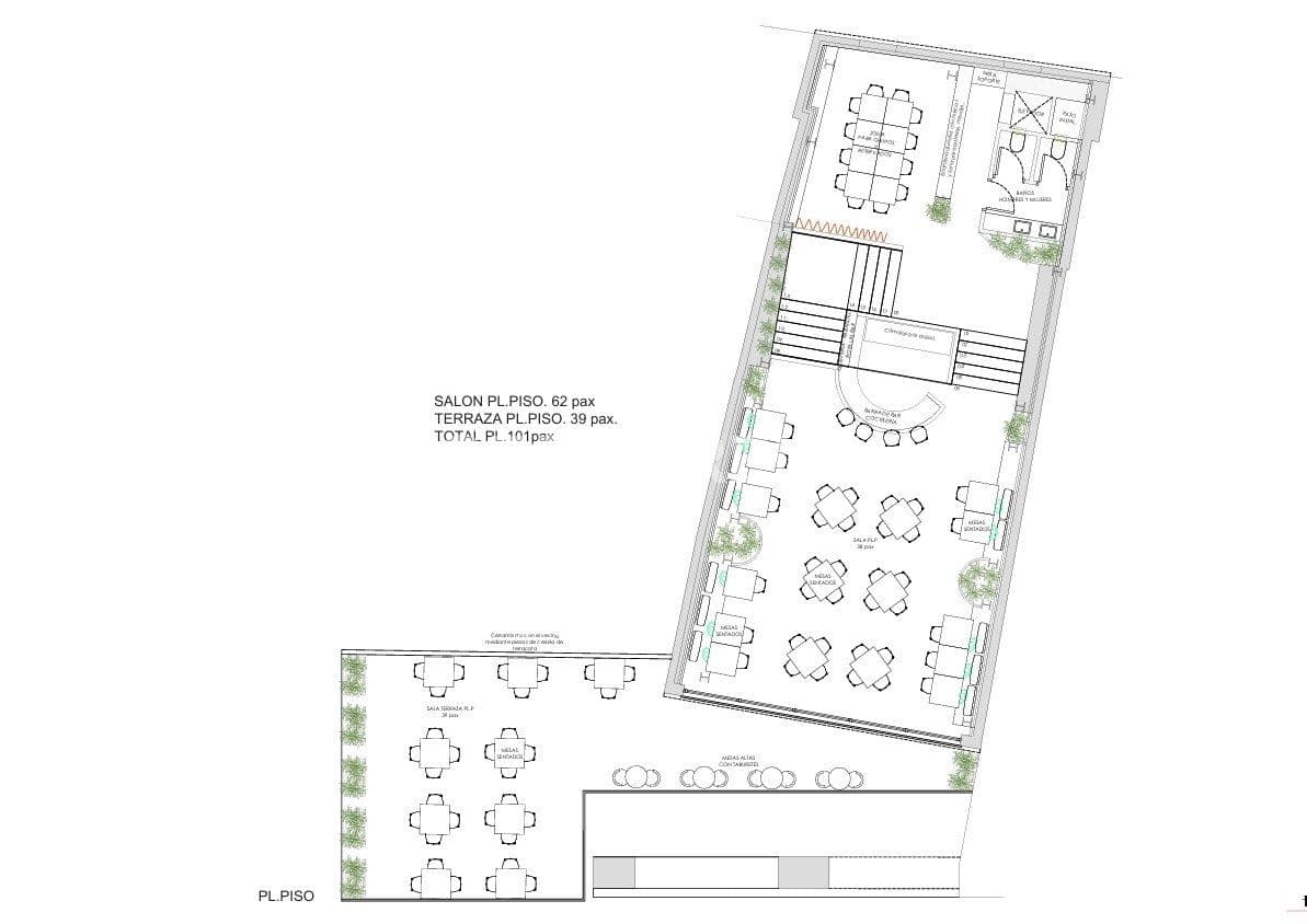
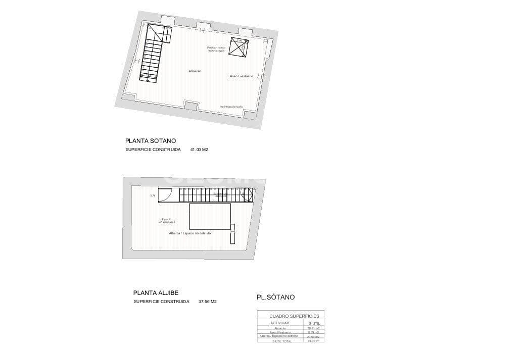
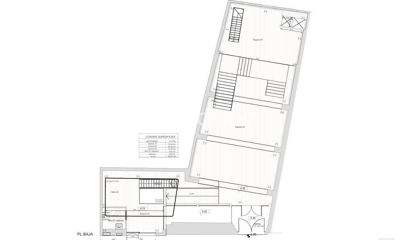
DESCRIPCIÓN: Local distribuido en planta calle con 219m2 aprox, 1ª planta de 153m2 aprox con terraza, sótano con 41m2 aprox más pequeña bodega de 37,56m2 aprox con acceso independiente. Cuenta con un montacargas que comunica todas las plantas entre sí. El local dispone de salida de humos e instalaciones básicas a terminar dependiendo de l...
DESCRIPCIÓN: Local distribuido en planta calle con 219m2 aprox, 1ª planta de 153m2 aprox con terraza, sótano con 41m2 aprox más pequeña bodega de 37,56m2 aprox con acceso independiente. Cuenta con un montacargas que comunica todas las plantas entre sí. El local dispone de salida de humos e instalaciones básicas a terminar dependiendo de l...
Datos del inmueble
Distribución
- Superficie: 451 m²
- 1 Baños
Equipamiento
- Exterior
Eficiencia
Estado de conservaciónA estrenar
