




1 / 12



Reservado
Atico dúplex a estrenar en el pueblo de Montuiri
Dúplex•Venta|MONTUIRI, MONTUIRI, Baleares
499.000 €
3Hab.
2Baños
145 m²m² Total
145 m²m² Const.
125 m²m² Útiles
REF: P-247
Descripción
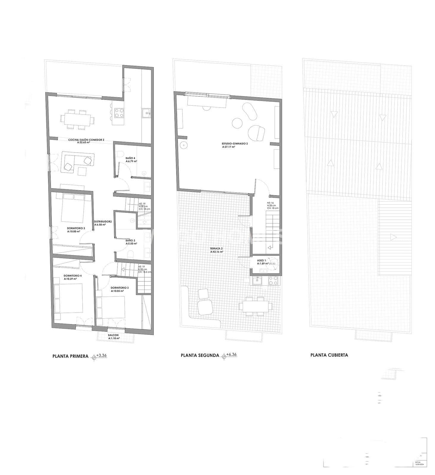
Atico dúplex con proyecto de rehabilitación completo cuya EJECUCION ESTA INCLUIDA EN EL PRECIO DE VENTA. Situado en el corazón de Montuiri, combina modernidad con el carácter de la edificación original, al ejecutarse en una casa de pueblo preexistente, ofreciendo un equilibrio perfecto entre encanto histórico y confort contemporáneo.
La propiedad dispone de una superficie total de 145 m², distribuidos para maximizar el espacio y la luz natural. Cuenta con tres habitaciones, todas dobles, fantástico para familias o para quienes necesiten espacio adicional para el trabajo o el ocio. Además, ...
La propiedad dispone de una superficie total de 145 m², distribuidos para maximizar el espacio y la luz natural. Cuenta con tres habitaciones, todas dobles, fantástico para familias o para quienes necesiten espacio adicional para el trabajo o el ocio. Además, ...
Datos del inmueble
Distribución
- Superficie: 145 m²
- Construidos: 145 m²
- Útiles: 125 m²
- Terraza: 45 m²
- 3 Habitaciones
- 2 Baños / 1 Aseos
Equipamiento
- Orientación: Oeste
- Exterior
Eficiencia
CertificadoEX
Estado de conservaciónReformado
