




1 / 10



Vendido
A REFORMAR- DIVISIBLE EN 2
Piso / Apartamento•Venta|EIVISSA, Baleares
835.000 €
178 m²m² Total
178 m²m² Const.
178 m²m² Útiles
REF: P-358
Descripción
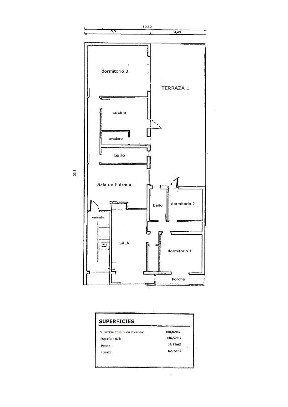
Vivienda de 178 m2 a reformar, con una terraza privada de 67 m2.
Situada en una primera planta, de un pequeño edificio de planta baja y primer piso, en Vía Púnica, zona muy tranquila a 300m. del Paseo de Vara de Rey.
Le corresponde un derecho proporcional de un 42,11 % (aprox. 50,52 m2) de construir una planta más, o derecho a mayor elevación,
Es el único piso en el edificio. Se puede dividir en 2 viviendas, cada una con su propia terraza.
Necesita reforma integral. Estructura en buen estado.
El local en planta baja está a la venta por 260.000 €.
Le corresponde al local un derecho prop...
Situada en una primera planta, de un pequeño edificio de planta baja y primer piso, en Vía Púnica, zona muy tranquila a 300m. del Paseo de Vara de Rey.
Le corresponde un derecho proporcional de un 42,11 % (aprox. 50,52 m2) de construir una planta más, o derecho a mayor elevación,
Es el único piso en el edificio. Se puede dividir en 2 viviendas, cada una con su propia terraza.
Necesita reforma integral. Estructura en buen estado.
El local en planta baja está a la venta por 260.000 €.
Le corresponde al local un derecho prop...
Datos del inmueble
Distribución
- Superficie: 178 m²
- Construidos: 178 m²
- Útiles: 178 m²
- Terraza: 67 m²
Equipamiento
- Vistas: Calle
- Orientación: 0
- Exterior
Eficiencia
CertificadoET
Estado de conservaciónA reformar
Ubicación| EIVISSA - 07800
Zona Aproximada
